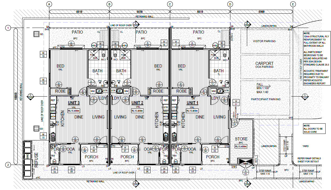
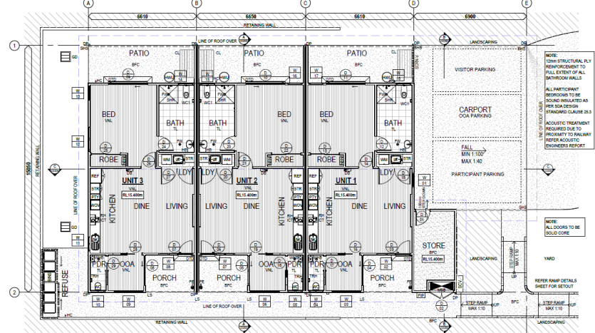
Designed with care and functionality, these robust villas offer three distinct residences tailored for SDA-funded participants and their support teams. Each villa includes a generously sized bedroom with a private ensuite, incorporating accessibility and safety features to promote independence and peace of mind. The open-concept kitchen and living area is equipped with thoughtful safety measures, enabling residents to navigate their daily routines comfortably and without obstruction.
Located Nearby:
- 3-minute drive to Logan hospital
- 8-minute drive to local cafes
- 1-minute drive to Loganlea train station
- 8-minute drive to Meadowbrook Central
If you have SDA in your plan or are wanting to include it in your next review, ADAPT Housing can help you find your forever home. To learn more or enquire about this property, please call 1300 223 278 or email info@adapthousing.com.au















