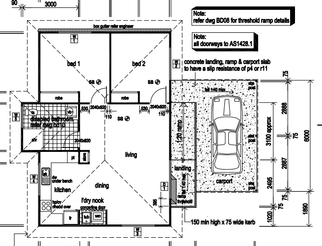
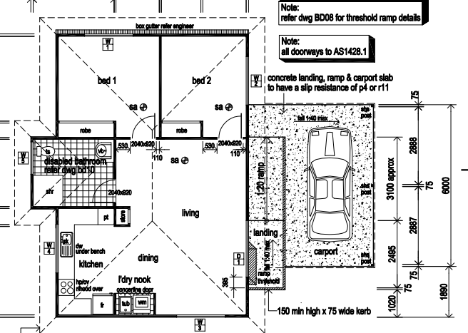
Discover these side by side modern 1-bedroom, 1-bathroom villas in Windsor, purpose-built to support independence and comfort. Designed under the Improved Liveability SDA category, each home features thoughtful accessibility elements that enhance safety, ease of movement, and day-to-day functionality.
With step-free access, open layouts, and modern finishes, these villas combine practicality with contemporary style—offering residents a welcoming, secure, and empowering place to call home.
Located Nearby:
4-minute drive to the Royal Brisbane and Women’s Hospital
8-minute drive to local shopping
3-minute drive to Windsor Train Station
3-minute drive to local cafes
For more information about this property and to express your interest, contact ADAPT Housing at 1300 223 278 or email info@adapthousing.com.au.
Please note: Some images shown are AI-generated for illustrative purposes only and may not represent the exact property.











